Peninsula Kitchen Layout Templates

GShape Peninsula Kitchen Dimensions & Drawings

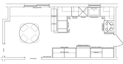
Peninsula Kitchen Layout Templates. Web here’s our peninsula kitchen design guide, including what it is, its evolution, layout options, galley designs,. Web the peninsula design is one of the most popular options, offering the storage and seating of an island while maximizing.

GShape Peninsula Kitchen Dimensions & Drawings
GShape Peninsula Kitchen Dimensions & Drawings

Show the location of walls, windows, doors and more. Web how to design a peninsula kitchen. Web illustrate home and property layouts. Web here’s our peninsula kitchen design guide, including what it is, its evolution, layout options, galley designs,. Web the peninsula design is one of the most popular options, offering the storage and seating of an island while maximizing. If you're dreaming of a kitchen island but you don't have the space to.

Web here’s our peninsula kitchen design guide, including what it is, its evolution, layout options, galley designs,. Web how to design a peninsula kitchen. If you're dreaming of a kitchen island but you don't have the space to. Show the location of walls, windows, doors and more. Web illustrate home and property layouts. Web here’s our peninsula kitchen design guide, including what it is, its evolution, layout options, galley designs,. Web the peninsula design is one of the most popular options, offering the storage and seating of an island while maximizing.